Loading...
 Imprimir    Cerrar
Título: Resolución exenta número 36.921, de 2025.- Establece procedimiento y requisitos para la verificación de la exactitud del volumen abastecido en instalaciones de expendio de combustibles líquidos al público
Fecha: 03-02-2026 Sector: Noticia general Región: Región Metropolitana de Santiago
Fuente: Diario Oficial Edición Electrónica (Diario Oficial de Chile - 1 Normas Generales) Página(s): 26-33
































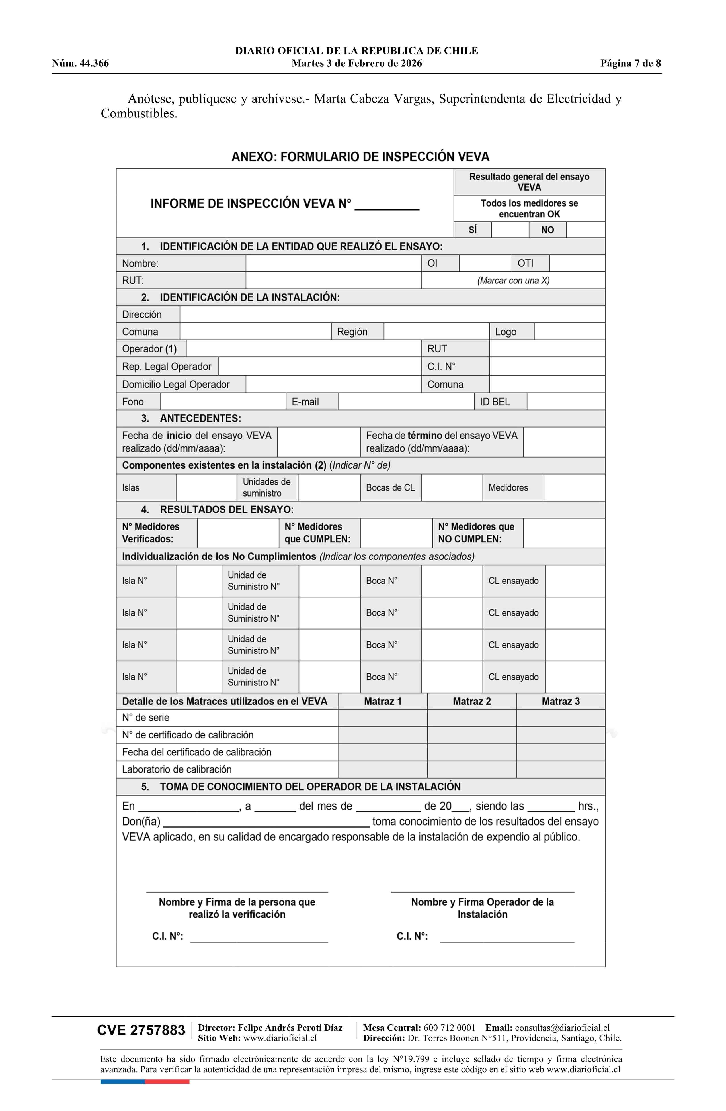
Resolución exenta número 36.921, de 2025.- Establece procedimiento y requisitos para la verificación de la exactitud del volumen abastecido en instalaciones de expendio de combustibles líquidos al público
03-02-2026 Diario Oficial Edición Electrónica



Para enviar a más de un destinatario separe las direcciones con comas
Ejemplo: usuario1@empresa.com, usuario2@empresa.com, usuario3@empresa.com
Scroll to Top